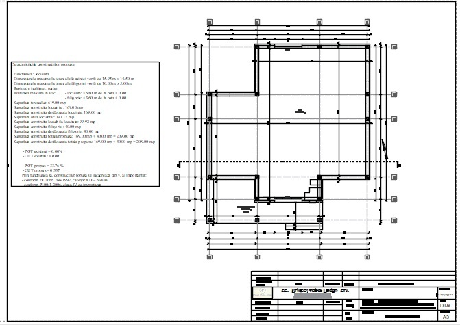
Llocuinta "L.E."  cu regim de inaltime parter si mansarda. Locuinta propusa va fi o constructie realizata pe sistem de stalpi si grinzi din b.a. cu inchideri din zidarie de bca de 25 cm grosime. La exterior, peretii for fi termoizolati cu polistiren de 10 cm grosime. Sarpanta se propune a fi realizata pe structura de lemn, in 4 ape si cu invelitoare din tabla. Peste bucatarie si terasa acoperita se va realiza cate o sarpanta de lemn intr-o singura apa cu invelitoare din tabla.

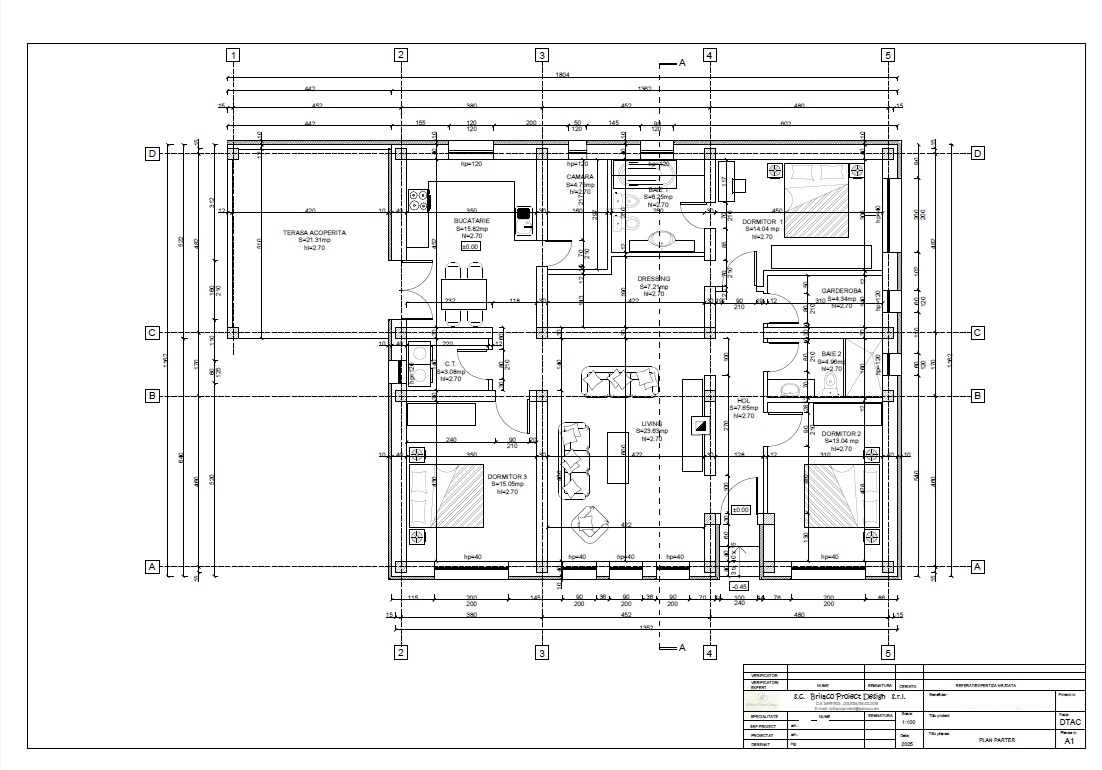
Functional locuinta va cuprinde:

Parter:

- living

- bucatarie

- camara

- 2 bai

- 2 dormitoare

- dressing

- casa scarii

- terasa acoperita

- hol

- garderobe

Mansarda:

-zona de relaxare + zona birou

- 2 dormitoare

- baie

- hol

- casa scarii

 

Sc parter= 172 mp; Sc mansarda = 104 mp; Scd = 276 mp

Locuinta "S.S."- constructie realizata pe cadre si stalpi din beton armat cu inchideri exterioare din zidarie de bca de 25 cm grosime. Peretii despartitori interiori vor fi realizati din zidarie de bca de 25 cm grosime cei portanti si de 12,5 cm grosime cei neportanti. La exterior, cladirea va fi termoizolata cu polistiren de 10 cm grosime. Sarpanta va fi de lemn, in doua ape, iar invelitoarea va fi din tabla.

Functional locuinta va cuprinde:

- living + bucatarie

- garaj

- camara

- hol

-2 bai

- 3 dormitoare

- balcon

Sc parter = 82.25 mp; Sc subsol = 22.75 mp; Sc mansarda = 84.28 mp; Scd = 189.28 mp

Filigorie pe structura de lemn si acoperis cu sarpanta de lemn in patru ape, cu invelitoare din tabla. Filigoria va fi amplasata pe o placa de beton armat.

Sc= 50.00 mp; Scd = 50.00 mp

Pret = 600 euro

Cabana "P.D."constructie cu regim de inaltime parter. La supanta va fi amplasat un pat, folosit drept dormitor. Accesul de la parter la patul din supanta, se va face cu ajutorul unei scari de lemn. Cabana va fi o constructie pe structura de lemn cu stalpi de 10 x 10 cm, inchideri din osb, cu un strat de vata minerala de 10 cm la interior. La exterior, peretii vor fi placati cu lambriuri de lemn de 2 cm grosime. Acoperisul va fi format dintr-o sarpanta de lemn in doua ape cu invelitoare din tabla.

Sc = 57.55 mp; Scd = 57.55 mp

Pret: 1000 euro

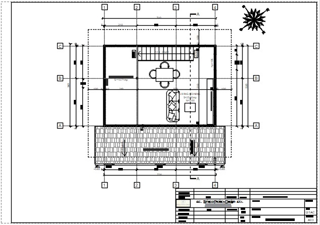
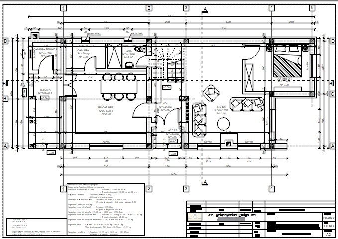
Locuinta "C.N."- regim de inaltime parter si etaj. Constructia va fi realizata din zidarie de bca de 30 cm grosime. Sarpanta va fi tip terasa.

Sc parter = 112.60 mp; Sc etaj = 105.22 mp; Scd = 217.82 mp

Locuinta va avea urmatoarele spatii:

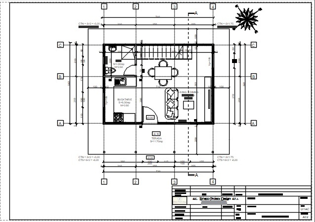
Parter:

 

-

Acces

2.60 mp

-

Hol

3.20 mp

-

Living

33.17 mp

-

Dormitor

12.00 mp

-

Centrala termica

2.97 mp

-

Baie

3.75 mp

-

Bucatarie

22.50 mp

-

Camara

3.80 mp

-

Terasa

13.60 mp

 

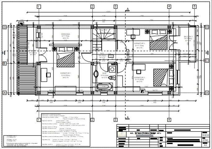
Etaj:

 

-

Hol

8.85 mp

-

Dormitor 1

22.50 mp

-

Dressing

7.75 mp

-

Balcon 1

3.60 mp

-

Dormitor 2

17.70 mp

-

Balcon 2

5.79 mp

-

Dormitor 3

15.95 mp

-

Baie

6.28 mp

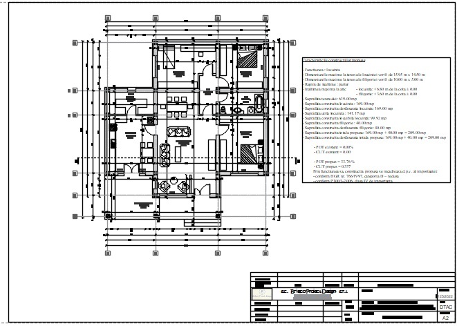
Locuinta "H.S." - constructie realizata pe cadre si stalpi din beton armat cu inchideri exterioare din zidarie de bca de 30 cm grosime. Peretii despartitori interior vor fi realizati din zidarie de bca de 30 cm grosime cei portanti si de 15 cm grosime cei neportanti. La exterior, cladirea va fi termoizolata cu polistiren de 10 cm grosime. Sarpanta va fi de lemn, in doua ape, iar invelitoarea va fi din tigla ceramica.

Functional locuinta va cuprinde:

- living + dinning

- bucatarie

- camara

- hol

- baie

- 3 dormitoare

- hol

- terasa acoperita

Sc = 169.00 mp; Scd = 169.00 mp

Locuinta "G.P." - constructie realizata din zidarie de caramida de 30 cm grosime, cu stalpi si grinzi din beton armat. La interior, peretii vor fi realizati din zidarie de caramida de 30 cm grosime, de 15 cm grosime si din gips carton de 10 cm grosime. La exterior, peretii vor fi termoizolati cu polistiren expandat de 10 cm grosime si tencuiti cu tencuieli decorative. Sarpanta va fi pe structura de lemn, in doua ape cu invelitoare din tabla.

 

Functional locuinta va cuprinde:

- living + bucatarie

- garaj

- camara

- hol

- 2 bai

- 2 terase acoperite

- 5 dormitoare

- 2 dressing-uri

- balcon

- spatiu de depozitareSc = 234.40 mp; Scd = 422.70 mp

 

Locuinta "D.O." - constructie realizata pe cadremetalice, cu inchiderile din panouri termoizolante de 10 cm grosime. La interior, peretii vor fi izolati cu vata minerala de 10m grosime si placati cu gips carton, montat pe profile din tabla zincata. La exterior, peretii vor fi tencuieti cu tencuieli decorative. Locuinta va fi amplasata pe o placa din beton armat. Sarpanta va fi pe structura metalica, intr-o singura apa cu invelitoare din panouri termoizolante de 6 cm grosime.

Functional locuinta va cuprinde:

- living

- bucatarie

- dining

- hol

- 3 bai

- 1 wc

- 3 dormitoare

- magazie

Sc = 150.00 mp; Scd = 150.00 mp

Locuinta "M.S."- constructie realizata din zidarie de bca de 40 cm grosime, stalpi si grinzi din b.a. Regim de inaltime P+E. Sarpanta de lemn in 4 ape si invelitoare de tigla ceramica.

Scparter = 241.68 mp; Scetaj = 173.76 mp; Scd = 415.44 mp

Functional, locuinta va cuprinde:

Parter:

- living

- bucatarie + dining

- terase

- camera de relaxare

- 2 dormitoare

- hol, sas

- camara

- magazie

- wc

- baie

- casa scarii

Etaj:

- 3 dormitoare

- birou

- 2 bai

- hol

- 3 balcoane

- terasa

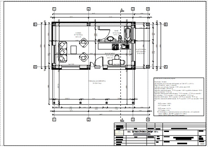
Locuinta "B. S." - regim de inaltime P;

Sc parter =181.35 mp;  Scd = 181.35 mp

Constructie realizata din bca "Ytong"de 40 cm grosime.

Functional locuinta va cuprinde:

- living

- bucatarie

- camara

- hol

- 2 bai

- 3 dormitoare

- dressing

- garderoba

- camera tehnica

- terasa acoperita

Verifică acum

Visezi la o casa?

Hai sa facem primul pas impreuna!

 

planul casei din lemn bej
clădire de beton gri aflată în construcție

Despre noi acum

Brilaco Proiect Design SRL, fondată în anul 2018, este un furnizor de servicii arhitecturale de top în România. Ne dedicăm satisfacției clienților prin gestionarea completă a proiectelor, colaborând strâns cu acestia, pentru a transforma viziuni în realitate, respectând reglementările și standardele de excelență.

De ce noi?

 

Ai visat la o casa? Noi te ajutam sa traiesti in ea. 

- Oferim servicii de proiectare personalizate, de la concept la execuție.

- Punem la dispozitia clientilor o lista de proiecte standard.

- Ne ocupam de absolut toate procedurile necesare, in vederea obtinerii autorizatiilor de constructie, astfel incat clientul sa parcurga cu placere aceasta experienta.

 

laptop alb și negru

Dezvoltarea proiectelor de planificare urbană pentru a îmbunătăți peisajul urban.

Proiectare faze PUD si PUZ - introducerea terenurilor in intravilan.

person writing on white paper

Management complet al proiectelor arhitecturale, coordonarea tuturor fazelor și documentația necesară.

people sitting down near table with assorted laptop computers
white and red wooden house beside grey framed magnifying glass

Cum lucrăm?

La Brilaco Proiect Design SRL, colaborăm strâns cu clienții noștri, ascultându-le nevoile și viziunile. Procesul nostru include consultări detaliate, dezvoltarea conceptelor personalizate și gestionarea eficientă a proiectelor, asigurându-ne că fiecare etapă respectă standardele de calitate și reglementările legale.

Ce spun clienții despre noi?

 

 

0744997471

office@brilaco.com

Aleea Romanilor, bl. 9, parter, Deva - HD

Indiciu:

Poți elimina această informație dacă activezi planul premium

Acest site web a fost creat gratuit în WebWave.
Și tu poți crea propriul site web, gratuit, fără cunoștințe de programare.